Schwarze Immobilien GmbH & Co. KG in Erkrath

Schwarze Immobilien GmbH & Co. KG

Heinrich-Hertz-Str. 7
40699 Erkrath

Telefon: +49 211 - 92 96 89 0
Telefax: +49 211 - 92 96 89 29
E-Mail: info@immo-schwarze.de
www.immo-schwarze.de

Alle Mietpreise stellen Ausgangsmieten dar. Die Miethöhe kann in Abhängigkeit von Mietvertragslaufzeit, Umbaukosten, Ausstattungswünschen und Bonität des Mieters variieren.

Arbeiten im Herzen von Velbert-Mitte

Objekt-Nr. 1414V – Büro/Praxis zur Miete in 42551 Velbert


Beschreibung

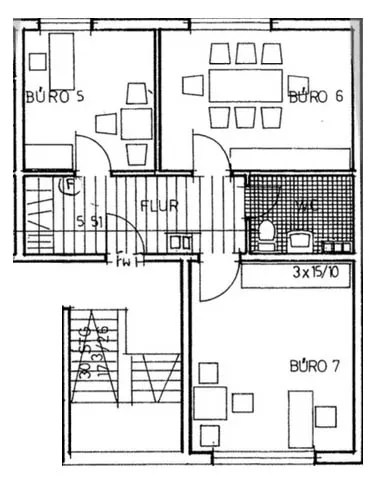
- 1. Obergeschoss
- Bürofläche ca. 58 m²
- Drei Büroräume
- WC
- Renovierung nach Absprache
- Bezugsfrei ab sofort

Energieausweis: nicht vorhanden/in Vorbereitung.

Sonstiges

Alle Mietpreise stellen Ausgangsmieten dar. Die Miethöhe kann in Abhängigkeit von Mietvertragslaufzeit, Umbaukosten, Ausstattungswünschen und Bonität des Mieters variieren.

Lagebeschreibung

Velbert - nördlich im Kreis Mettmann gelegen - stellt den Übergang vom Ruhrgebiet ins Bergische Land her und liegt verkehrsgünstig im Städtedreiecke Düsseldorf, Essen und Wuppertal.

Die nahegelegenen Autobahnen A44 und A535 bieten schnelle und gute Anbindungen in die umliegenden Großstädte
[weiterlesen]

Video

Objektdaten

Kaltmiete 460 €
Miete pro m² 7,93 €
Mieterprovision 1,19 Netto-Monatsmieten (inkl. MwSt.)
Nebenkosten 75 €
Miete inkl. NK 535 €
Bürofläche ca. 58 m²
Gesamtfläche ca. 58 m²
Zimmer 3
Befeuerungsart Gas
Heizungsart Etagenheizung
Kaltmiete 460 €
Miete pro m² 7,93 €
Mieterprovision 1,19 Netto-Monatsmieten (inkl. MwSt.)
Nebenkosten 75 €
Miete inkl. NK 535 €
Bürofläche ca. 58 m²
Gesamtfläche ca. 58 m²
Zimmer 3
Befeuerungsart Gas
Heizungsart Etagenheizung

Grundrisse

Ansprechpartner

Holger Blücher
Telefon: +49 211 929689-15

holgerbluecher@immo-schwarze.de


Objekt-Nr. 1414V – Büro/Praxis zur Miete in 42551 Velbert


Zurück zu den Immobilienangeboten

Bewerten Sie Schwarze Immobilien GmbH & Co. KG