Ideal für Dienstleister
Beschreibung
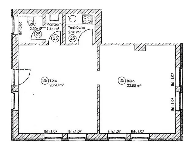
Bei diesem Angebot handelt es sich um eine erst im Januar 2025 modernisierte Büro/Ladeneinheit im Erdgeschoss in zentraler Lage.
Der eigene Eingang sorgt für Komfort. Insgesamt stehen ca. 54 m² Gewerbefläche, aufgeteilt auf zwei Räume, Teeküche und WC zur Verfügung.
Der
[weiterlesen]
Ausstattung
- Modernisiert im Januar 2025- Zwei Räume
- Teeküche
- WC
Sonstiges
Die gute Sichtlage sorgt für eine hohe Kundenfrequenz und wird auch zukünftig für gute Umsätze und einen wertstabilen Standort sorgen.Energieausweis: Verbrauch – 135,5 kWh – E – Erdgas – Baujahr 1991
Lagebeschreibung
Nur wenige Kilometer östlich von Düsseldorf, am Fuß des Bergischen Landes, liegt die Gartenstadt Haan mit ca. 30.000 Einwohnern. Denkmalgeschützte Häuser, liebevoll gepflegte Gärten und öffentliche Grünanlagen prägen das Bild der Stadt.
Die Haaner Altstadt verbreitet nostalgisches Flair, das Warenangebot ist
[weiterlesen]
Objektdaten
| Kaufpreis 135.000 € |
| Käuferprovision 3,57 % vom Kaufpreis (inkl. MwSt.) |
| Bürofläche ca. 54 m² |
| Gesamtfläche ca. 54 m² |
| Stellplätze 1 |
| Zimmer 2 |
| Baujahr 1991 |
| Befeuerungsart Gas |
| Heizungsart Zentralheizung |
| Kaufpreis 135.000 € |
| Käuferprovision 3,57 % vom Kaufpreis (inkl. MwSt.) |
| Bürofläche ca. 54 m² |
| Gesamtfläche ca. 54 m² |
| Stellplätze 1 |
| Zimmer 2 |
| Baujahr 1991 |
| Befeuerungsart Gas |
| Heizungsart Zentralheizung |
| Stellplätze 1 |
Energieverbrauchsausweis
| Endenergieverbrauch 135,50 kWh/(m²*a) |
| Befeuerungsart Gas |
| Heizungsart Zentralheizung |
| Wesentlicher Energieträger GAS |
| Baujahr (Energieausweis) 1991 |
| Energieeffizienzklasse E |
| Gültig bis 20.06.2028 |
| Energieausweis 2014 |
Zurück zu den Immobilienangeboten
Anfrage senden
Ideal für Dienstleister
Die mit einem * gekennzeichneten Felder sind Pflichtfelder.
